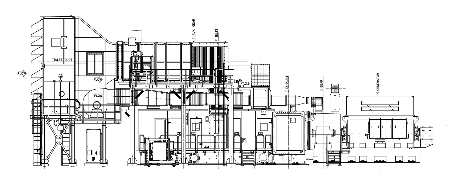
30MWGasTurbinePlantArrangement GE

Tom Stanek

Request your quote now

Call: 603-766-0423

Tom Stanek

The founder and president of K2 Castings, and a U.S. Coast Guard veteran, Tom brings over 20 years of experience helping large and small shredding companies increase revenues while reducing costs.

Ben Guerrero

With over 40 years experience in the metal shredding industry, Ben has a deep knowledge of all aspects of shredding operations.